0
Skip to Content
Services
Portfolio
About
Insights
Enquire
BOOK A CALL
Open Menu
Close Menu
Open Menu
Close Menu
Services
Portfolio
About
Insights
Enquire
BOOK A CALL
Services
Portfolio
About
Insights
Enquire
BOOK A CALL
Previous
Previous
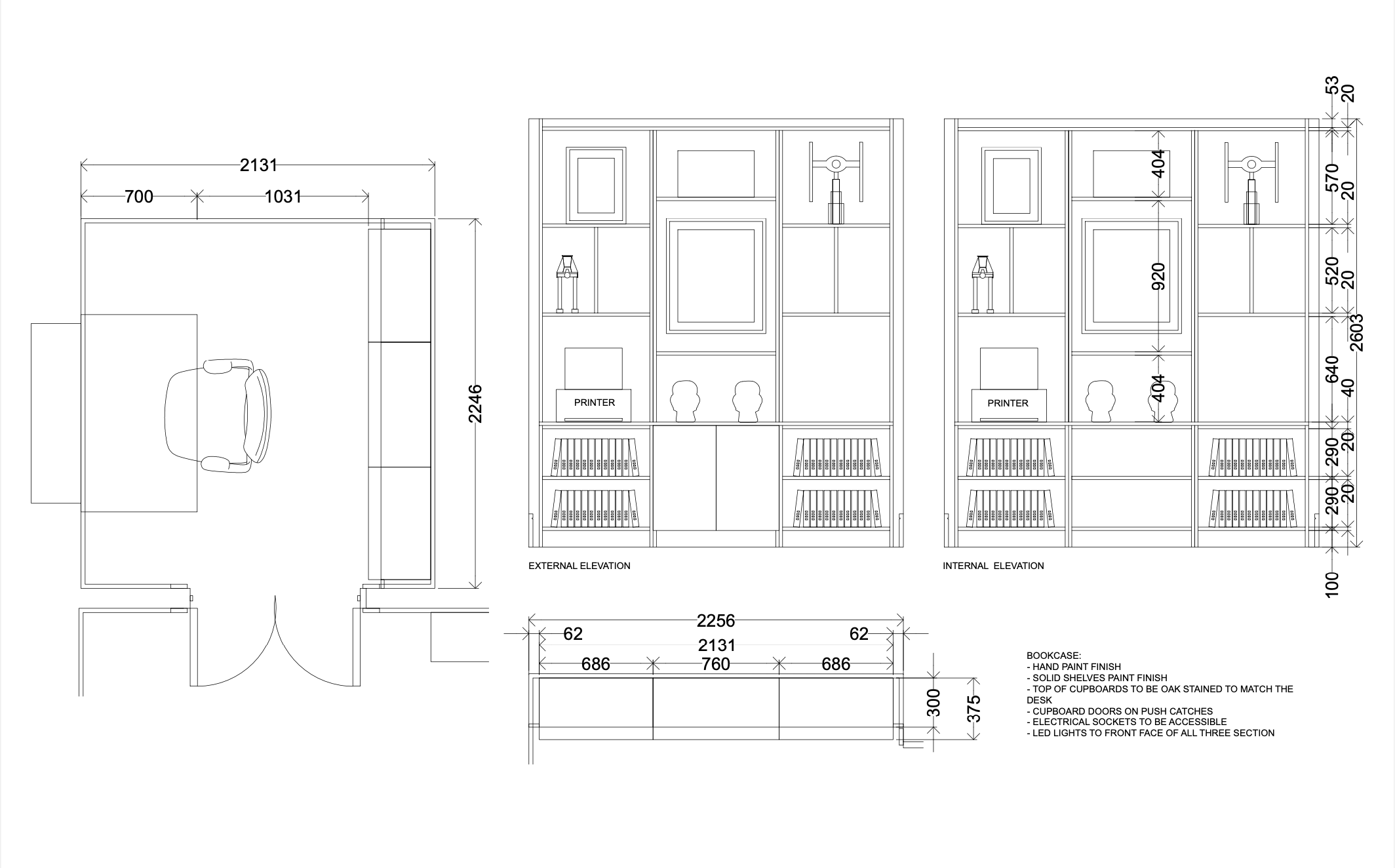
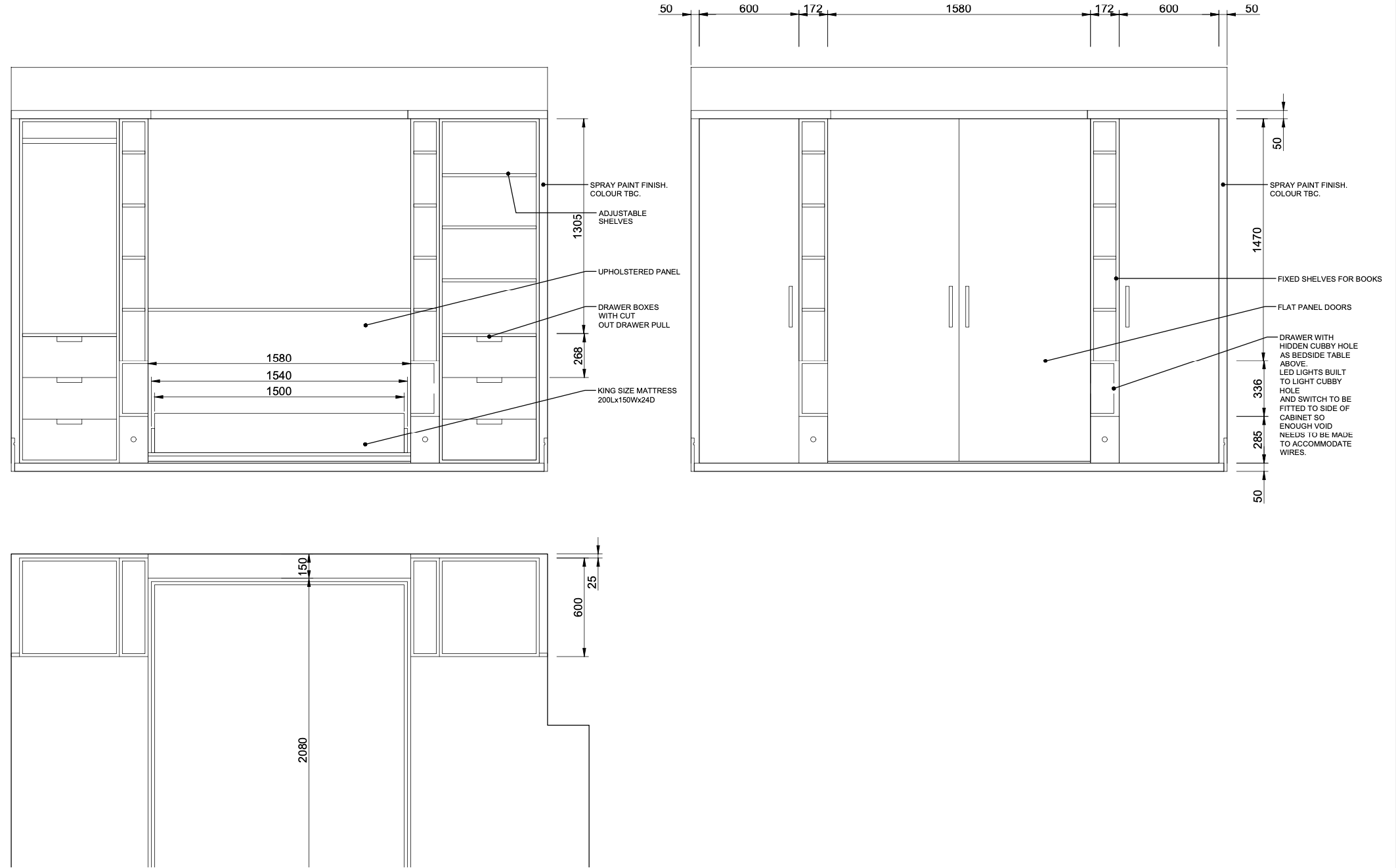
Taplow